Your New Chapter Begins Now!

Isabel Vasquez

(520) 214-5558
Email Agent
  • $28,999
5445 N Shannon Rd #29, Tucson, AZ, USA, Tucson
For Sale

Your New Chapter Begins Now!

5445 N Shannon Rd #29, Tucson, AZ, USA, Tucson
  • $28,999

Isabel Vasquez

(520) 214-5558
Email Agent

Overview

  • 2
  • Bedrooms
  • 1
  • Bathroom
  • 768
  • sqft

Description

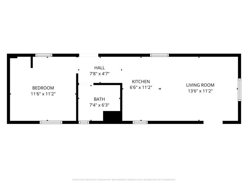
Welcome to your slice of Tucson sunshine! This thoughtfully maintained 2-bedroom, 1-bathroom manufactured home offers 768 square feet of comfortable living space in the desirable Palm Vista community.

Inside Your New Home:
Step into a welcoming floor plan designed for easy living. The spacious living and dining areas flow seamlessly, creating an ideal space for both everyday relaxation and entertaining guests. The well-appointed kitchen comes complete with an oven and refrigerator, while the master bedroom provides a peaceful retreat. With central air conditioning, washer/dryer hookups, and a hot water heater, you’ll enjoy modern convenience in this cozy residence.

Enjoy resort-style amenities without the resort price tag. Take a refreshing dip in the community pool, host gatherings in the clubhouse, or simply appreciate the well-maintained grounds and friendly neighbors. You’re minutes from Tucson’s best shopping, dining, and entertainment, yet tucked away in a peaceful, tree-lined community.

  • Address 5445 N Shannon Rd #29
  • City Tucson
  • State AZ

Details

Updated on November 11, 2025 at 6:22 pm
  • Price: $28,999
  • Property Size: 768 sqft
  • Bedrooms: 2
  • Bathroom: 1
  • Year Built: 1973
  • Property Status: For Sale
  • Lot Number: 29
  • Community Type: All Ages
  • Manufacturer: Skyline
  • Home Model: Homette

Walkscore

Compare listings

Compare
Enjoy Laid-Back Living at Palm Vista in Tucson, AZ
  • Enjoy Laid-Back Living at Palm Vista in Tucson, AZ