55+ Community Luxury Rental!
- $1,200/mo
- $1,200/mo
Overview
- 3
- 2
- 869 sqft
Description
MOVE IN SPECIAL :
GET 1 MONTH FREE !
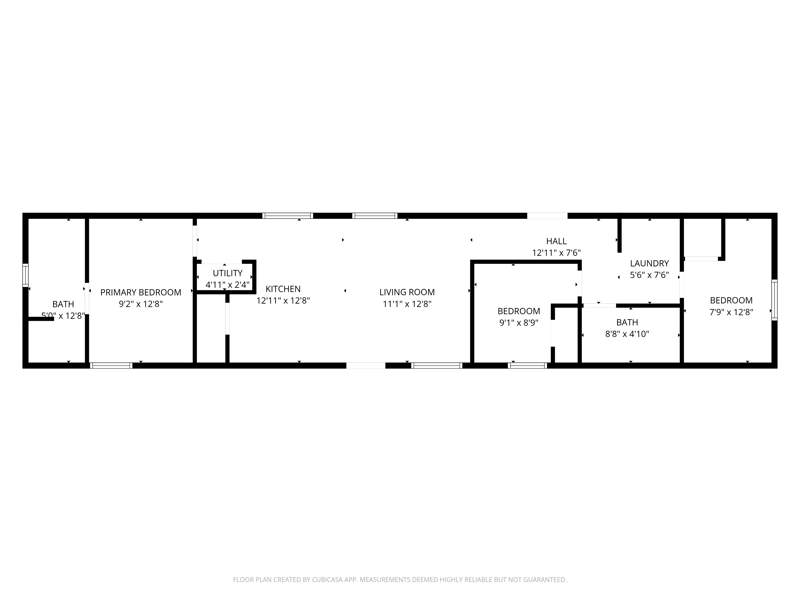
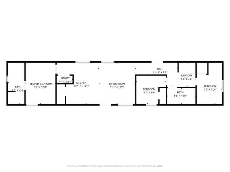
This 869 square foot manufactured home at Carousel Ranch in Tucson, AZ offers a cozy and modern design with 3 bedrooms and 2 bathrooms. Built in 2024 by CMH Manufacturing West, this home features a spacious living room, a master bedroom with an en suite bathroom and walk-in closet, a bonus room that can be used as a home office or playroom, a fully equipped kitchen, and a convenient laundry room. The exterior of the home boasts a charming patio and trees on the property, providing a serene outdoor space for relaxation and entertaining. Inside, the home is equipped with stainless steel appliances, including an oven, fridge, and dishwasher, as well as a hot water heater, washer/dryer hook up, and central A/C for added comfort and convenience.
Carousel Ranch is a vibrant community located in Tucson, AZ, offering residents a variety of amenities and activities to enjoy. With beautifully landscaped grounds and a welcoming atmosphere, residents can take advantage of the community clubhouse, swimming pool, and fitness center for socializing and staying active. The community also hosts events and gatherings for residents to connect and build relationships with their neighbors. Conveniently located near shopping, dining, and entertainment options, Carousel Ranch provides an ideal setting for a relaxed and enjoyable lifestyle in Tucson.
MOVE IN SPECIAL :
GET 1 MONTH FREE !
Address
Open on Google Maps-
Address: 4315 N Flowing Wells Rd #45
-
City: Tucson
-
State: AZ
Details
Updated on January 21, 2026 at 6:24 pm-
Property ID PC221
-
Price $1,200/mo
-
Property Size 869 sqft
-
Bedrooms 3
-
Bathrooms 2
-
Year Built 2024
-
Property Status For Rent
-
Lot Number 45
-
Community Type 55+
-
Manufacturer CMH Manufacturing West
-
Home Model Unknown
Walkscore
Similar Listings
Come Tour this beautiful 3b/1b Before its gone
- $1,349/mo
Come Tour this beautiful 3b/2b Before its gone
- $1,349/mo
Come Tour this beautiful 3b/2b Before its gone
- $49,999
Brand New Mobile Home! 55+ Community
- $55,760
- $1,160/mo
- Welcome to Carousel Ranch in Tucson, AZ